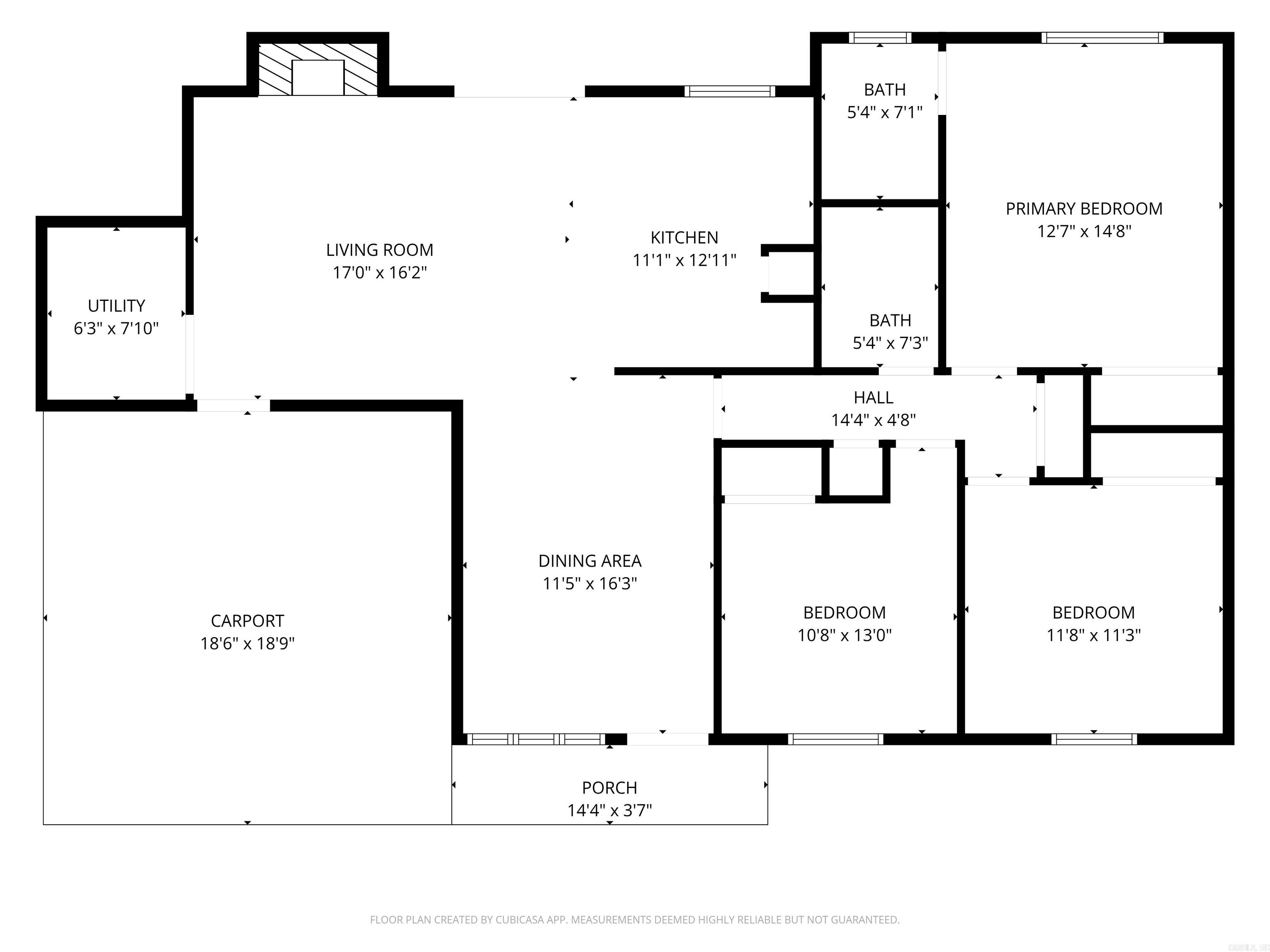
Property
Beds
3
Full Baths
2
1/2 Baths
None
Year Built
1972
Sq.Footage
1,425
308 Timberline Drive blends character, comfort, and thoughtful updates throughout. Step through the beautifully hand-carved front door and discover a bright, open layout designed for easy everyday living. The updated kitchen features granite countertops and modern finishes that pair perfectly with the home’s inviting style. Major improvements include a new HVAC system, tankless water heater, updated windows, and an enhanced drainage system—bringing both efficiency and peace of mind. The fully fenced backyard is a true retreat with a large storage shed, additional outdoor storage, and plenty of space to entertain or unwind. With three bedrooms and two full baths, this home delivers the perfect mix of functionality and charm—ready for its next owner to enjoy craftsmanship, comfort, and care in every detail.
Features & Amenities
Interior
-
Other Interior Features
Breakfast Bar, Eat-in Kitchen, Pantry, Ceiling Fan(s), Granite Counters
-
Total Bedrooms
3
-
Bathrooms
2
-
Cooling YN
YES
-
Cooling
Electric, Central Air
-
Heating YN
YES
-
Heating
Natural Gas, Central
-
Pet friendly
N/A
Exterior
-
Garage
No
-
Construction Materials
Frame, Masonite, Stone
-
Other Exterior Features
Storage
-
Parking
Carport
-
Patio and Porch Features
Patio
-
Pool
No
Area & Lot
-
Lot Features
Sloped
-
Lot Size(acres)
0.19
-
Property Type
Residential
-
Property Sub Type
Single Family Residence
-
Architectural Style
Traditional
Price
-
Sales Price
$185,000
-
Tax Amount
1507.23
-
Sq. Footage
1, 425
-
Price/SqFt
$129
HOA
-
Association
No
School District
-
Elementary School
N/A
-
Middle School
N/A
-
High School
N/A
Property Features
-
Stories
1
-
Sewer
Public Sewer
-
Water Source
Public
Schedule a Showing
Showing scheduled successfully.
Mortgage calculator
Estimate your monthly mortgage payment, including the principal and interest, property taxes, and HOA. Adjust the values to generate a more accurate rate.
Your payment
Principal and Interest:
$
Property taxes:
$
HOA fees:
$
Total loan payment:
$
Total interest amount:
$
Location
County
Pulaski
Elementary School
Middle School
High School
Listing Courtesy of LuAnn Campbell , Crye-Leike REALTORS NLR Branch
RealHub Information is provided exclusively for consumers' personal, non-commercial use, and it may not be used for any purpose other than to identify prospective properties consumers may be interested in purchasing. All information deemed reliable but not guaranteed and should be independently verified. All properties are subject to prior sale, change or withdrawal. RealHub website owner shall not be responsible for any typographical errors, misinformation, misprints and shall be held totally harmless.
Broker / Owner / REALTOR®
MikkiDennis
Call Mikki today to schedule a private showing.
* Listings on this website come from the FMLS IDX Compilation and may be held by brokerage firms other than the owner of this website. The listing brokerage is identified in any listing details. Information is deemed reliable but is not guaranteed. If you believe any FMLS listing contains material that infringes your copyrighted work please click here to review our DMCA policy and learn how to submit a takedown request.© 2024 FMLS.